Pages

ARCHITEKTURA NA ŚWIECIE. Jockey Club Innovation Tower / Zaha Hadid Architects

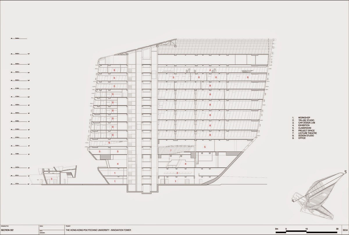
Nowy tydzień zaczynam od wizyty w Hong Kongu. Tu właśnie został zbudowany niesamowity budynek Jockey Club Innovation Tower zaprojektowany przez pracownię projektową Zaha Hadid Architects. Wysokość budynku: 78m, 15 pięter, powierzchnia netto: 15 tys. m2. Budynek przeznaczony dla 18 tys. studentów i pracowników. Jockey Club Innovation Tower jest siedzibą szkoły wzornictwa Politechniki w Hong Kongu (Hong Kong Politechnic University School of Design) oraz Klubu jeździeckiego Instytutu Innowacji Społecznej (Jockey Club Design Institute for Social Innovation). W budynku znajdują się: pracownie projektowe, laboratoria, warsztaty, tereny wystawowe, sale wielofunkcyjne, audytoria oraz wspólne foyer. Wewnętrzne dziedzińce, szklane ściany i wnęki, czytelna komunikacja, ogólnodostępne sale zapewniają interakcje między wieloma różnym grupami studentów i nauczycieli.
Zapraszam do: Jockey Club Innovation Tower Hong Kong Polytechnic University by Zaha Hadid

Jockey-Club-Innovation-Tower-Hong-Kong-Dacon-Design-blog

Jockey-Club-Innovation-Tower-Hong-Kong-Dacon-Design-blog

Jockey-Club-Innovation-Tower-Hong-Kong-Dacon-Design-blog

Jockey-Club-Innovation-Tower-Hong-Kong-Dacon-Design-blog

Jockey-Club-Innovation-Tower-Hong-Kong-Dacon-Design-blog

Jockey-Club-Innovation-Tower-Hong-Kong-Dacon-Design-blog

Jockey-Club-Innovation-Tower-Hong-Kong-Dacon-Design-blog

Jockey-Club-Innovation-Tower-Hong-Kong-Dacon-Design-blog

Jockey-Club-Innovation-Tower-Hong-Kong-Dacon-Design-blog

Jockey-Club-Innovation-Tower-Hong-Kong-Dacon-Design-blog

Jockey-Club-Innovation-Tower-Hong-Kong-Dacon-Design-blog

Jockey-Club-Innovation-Tower-Hong-Kong-Dacon-Design-blog



















Słonecznego tygodnia

Brak komentarzy:

Prześlij komentarz